Confortable 2 Pieces, 4 Pers, Skis Aux Pieds, Proche Commerces - Fr-1-182A-26 Courchevel
Confortable 2 Pieces, 4 Pers, Skis Aux Pieds, Proche Commerces - Fr-1-182A-26
Kun forhåndsvisning - se alle hotelbilleder
Se alle 25-fotos 1 /
25
8.0
1 anmeldelse
De bedste muligheder for dine rejsedatoer
Vis hotel på kort
Confortable 2 Pieces, 4 Pers, Skis Aux Pieds, Proche Commerces - Fr-1-182A-26
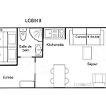
Denne 1 værelses ferielejlighed med et fuldt udstyret køkken ligger inden for 20 minutters gang fra centrum af Courchevel.
Gæsterne kan finde Epicea Ski Lift inden for 2 km og Bouc Blanc Skilift inden for 2,1 km fra indkvarteringen. Bar La Taiga kan man nå på 8 minutters gåtur. Det tager en 10-minutters køretur for at se Méribel.
Der er 1 badeværelser.
Denne 25 m² ferielejlighed ligger 100 km fra Meythet lufthavn. Ski faciliteter omfatter et skiopbevaringsrum.
Mere +
Mindre -
Vent venligst, vi tjekker tilgængelige værelser til dig.
Vi søger hoteller
Faciliteter
Hovedfunktioner
- Børnevenlig
- Kæledyr ikke tilladt
Faciliteter
General:
- Rygning forbudt på alle fælles- og privatområder
- Kæledyr ikke tilladt
- Skiopbevaringsrum
- Elevator
Middag:
- Kedel
- Køkkengrej/ Køkkenredskaber
Sport og Fritid:
- Skiløb
Bekvemmeligheder på værelset:
- Spisebord
- Tremmesenge/vugger
Politik
Indtjekning: fra 17:00 indtil 19:00
Udtjekning: fra 08:00 indtil 10:00
Kort
Lokale seværdigheder
Vartegn
- Les 3 Vallées (3,7 km)
Lufthavne
- Meythet Lufthavn (98 km)
Anmeldelser
Skriv anmeldelse
100% Verificerede anmeldelser
8 /10